SAARISTOMEREN PARHAAT NÄKÖALAT
Archipelago Bofinken -huvila sijaitsee Kemiönsaaren Västanfjärdissä, Ekholmenin saaressa n. 5 minuutin venematkan päässä pienvenesatamasta.

Huvilalta avautuvat aavat merinäköalat etelään Hangon suuntaan, ja terassilta, laiturilta tai saunan lauteilta horisontista erottaakin n. 15 merimailin (n. 30km) päässä siintävän Hangon sataman. Laajaa ulappaa ihaillessa pääsee aitoon saaristolaistunnelmaan parhaillaan.
ETELÄRINNE JA KALLIORANTA
Tontti sijaitsee etelärinteessä, johon paistaa aurinko koko päivän. Omaa kallioista rantaviivaa on n. 70 metriä. Rannassa on uusi ympärivuotiseen käyttöön tarkoitettu raskasponttonilaituri, joka sijaitsee suojassa aallonmurtajan takana, mahdollistaen isojenkin veneiden kiinnittäytymisen.






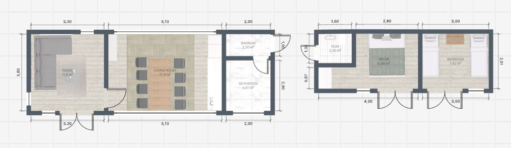
KAUPUNKIMAISTA MUKAVUUTTA
Archipelago Bofinken tarjoaa kaikki kaupungin mukavuudet asukkailleen. Täysin varustettuun keittiöön kuuluvat uudet kodinkoneet, mukaan lukien indiktioliesi, sähköuuni, astianpesukone ja jääkaappipakastin.





Kohteessa on paljon ikkunoita ja meri näkyy jopa saunasta! Kylpyhuone tarjoaa lämpimän suihkun ja lattialämmityksen. Wc:ssä on moderni, täysin hajuton erotteleva kuivakäymälä, joka vastaa käyttömukavuudeltaan tavallista wc:tä.















